Die landeseigene Berliner Immobilienmanagement GmbH (BIM GmbH) betreut insgesamt 37 Wasserrettungsdienste im Land Berlin. Diese Stationen sind unverzichtbarer Bestandteil der öffentlichen Sicherheit und werden in der Regel durch ehrenamtliche Rettungsschwimmer:innen besetzt, die durch ihr hohes Maß an Engagement einen wertvollen Beitrag für unsere Stadtgesellschaft leisten.
Einige dieser Stationen sind von einem merklichen Sanierungsrückstau betroffen und benötigen im Hinblick auf den Verbrauch von Ressourcen und die Zufriedenheit der engagierten Nutzer*innen dringende Neuerungen. In Friedrichshagen erhält die DLRG mit dem Neu- und Erweiterungsbau der Wasserrettungsstation Friedrichshagen nun ein nachhaltiges Gebäude, das ideal auf die Rettungsabläufe ausgerichtet ist. Gleichzeitig dient es der Berliner Immobilienmanagement GmbH als Pilot für kreislaufgerechtes Bauen.

Wie integriert man die Bauteile, deren Rückbau und Materialeigenschaften in die etablierten Planungsprozesse? Welche Informationen braucht es? Wer übernimmt die Gewährleistung?
Dabei sollen Bauteile aus dem Gebäudebestand der BIM wiederverwendet, dokumentiert und in ihrem Kreislaufpotential analysiert werden.


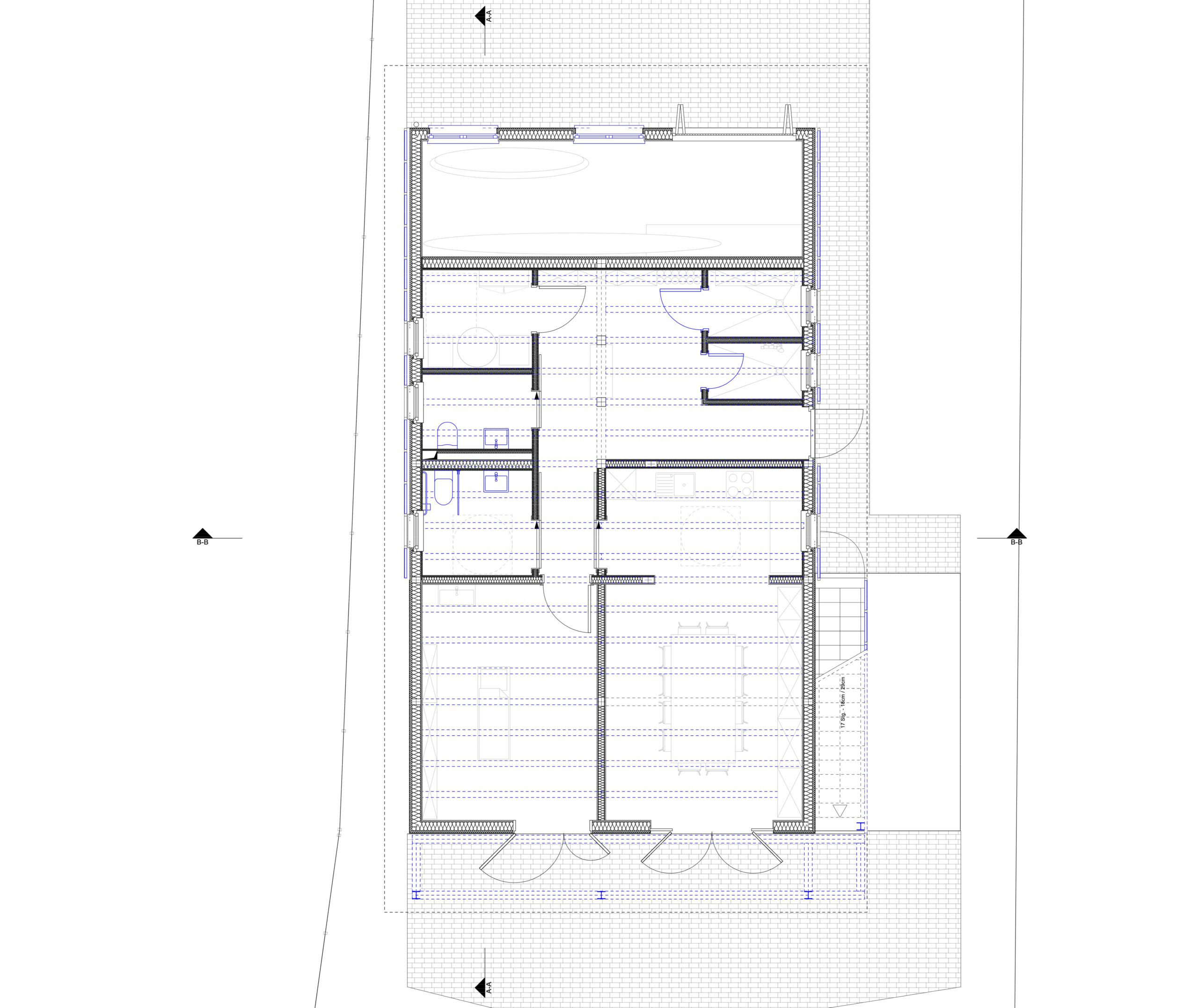
Die 1927 gegründete Station liegt am Müggelpark und umfasst Sanitätsraum, Küche, Mannschaftsraum, WC/Dusche, Werkstatt sowie Schlafräume für ca. 15 Personen des DLRG. Die Station ist das erste landeseigene Gebäude, das nach dem ReUse-Konzept saniert wird.
Studierende der TU Berlin beschäftigten sich in einem Reallabor mit der Erstellung von Entwürfen für den kreislaufgerechten Prototyp. Das NBL Studio betreut die weitere Objektplanung und die Reuse-Koordination.
Geplant ist die Umsetzung wesentlicher tragender Bauteile aus wiederverwendetem Holz und Stahl. Ergänzt werden diese durch den Wiedereinsatz von Bekleidungen, Bodenbelägen, Innenausstattungen, Fenstern, Türen und der gestaltgebenden Metallfassade aus dem BIM-eigenen Portfolio.







